Ilustraciones y esquemas

El "Molín de Adela"

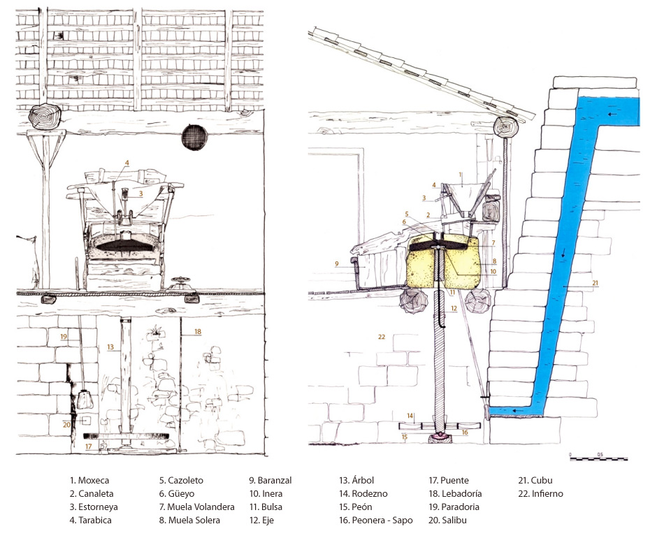
Reproducción del interior de nuestro molino.

Un molino típico de Asturias

Autores: Miguel Cores - Florencio Cobo

Ilustración esquemática de un molino típico de Asturias y nombres de las piezas que lo componen.